Bệnh viện Mắt Công nghệ cao 3P Sài Gòn
Giải pháp thiết kế bệnh viện tối ưu lưu thông gió, đảm bảo gió tươi tiệt trùng cho khu phẫu thuật, mang đến không gian an toàn, sạch khuẩn và hiệu quả vận hành.
Thông tin dự án
-
Chủ đầu tư: Công ty CP Mắt Công Nghệ Cao 3P Sài Gòn
-
Địa điểm: Quận Gò Vấp, TP. Hồ Chí Minh
-
Loại hình: Bệnh viện chuyên khoa mắt công nghệ cao
-
Phong cách: Tân cổ điển - Hiện đại
-
Thiết kế: CJK Concept
-
Quy mô: 5 tầng
-
Công năng: Khám – điều trị – phẫu thuật mắt, khu hành chính, hội nghị và khu nghỉ nhân viên
Ý tưởng thiết kế tổng thể
Dự án 3P Eyecare được CJK Concept phát triển theo hướng tân cổ điển hiện đại, kết hợp sự thanh lịch, sang trọng của kiến trúc châu Âu với tính thực tiễn và công nghệ y khoa hiện đại.
Mặt tiền công trình nổi bật với tỷ lệ đối xứng, phào chỉ tinh tế, cùng gam màu trắng sáng chủ đạo giúp tôn lên hình ảnh chuyên nghiệp, đáng tin cậy của một cơ sở y tế chất lượng cao.

Phân khu chức năng và bố trí không gian
-
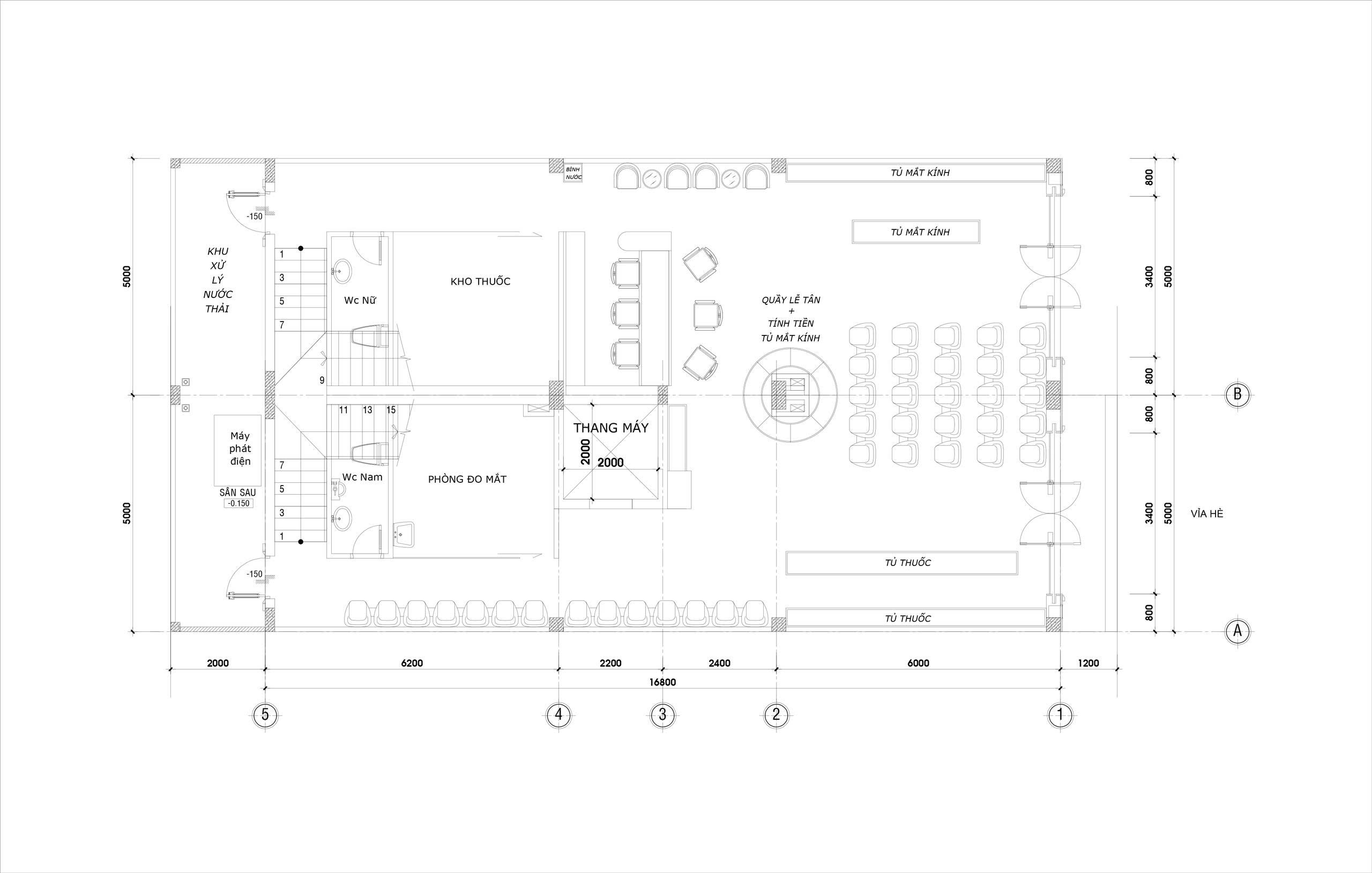
Tầng trệt: Tiếp đón – đo mắt – quầy kính – kho thuốc – khu xử lý nước thải.
Không gian mở, bố trí hợp lý giữa quầy lễ tân, khu chờ và khu bán kính giúp tối ưu trải nghiệm khách hàng.
-
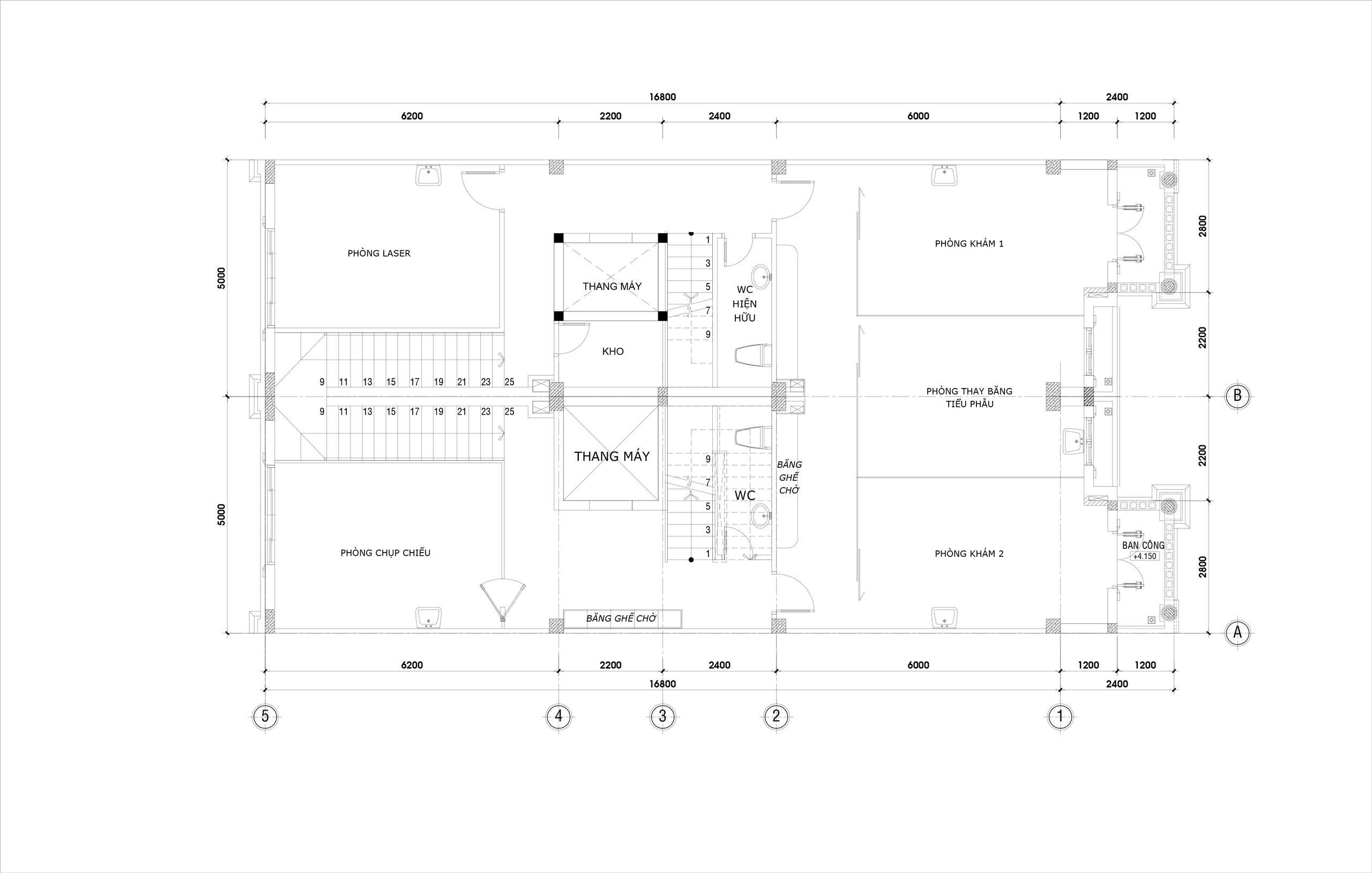
Tầng 2: Phòng khám chuyên khoa – phòng chụp chiếu – phòng laser – phòng thay băng và tiểu phẫu.
Thiết kế đảm bảo luồng di chuyển y bác sĩ và bệnh nhân tách biệt, tuân thủ tiêu chuẩn an toàn y tế.
-
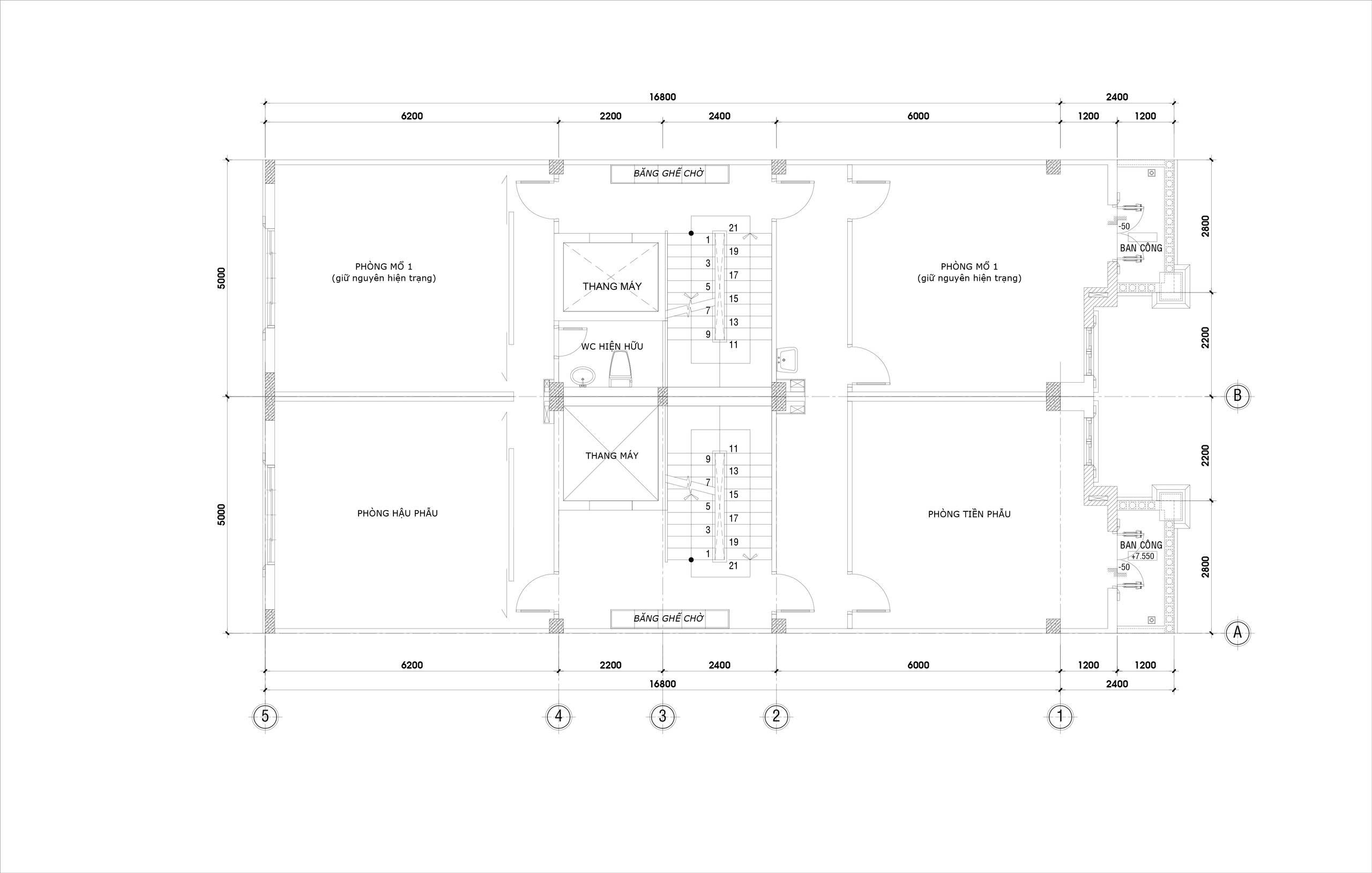
Tầng 3: Phòng mổ – phòng tiền phẫu – hậu phẫu – khu nghỉ chờ.
Hệ thống kỹ thuật và không gian được tối ưu ánh sáng, âm thanh và vô trùng, phù hợp với tiêu chuẩn phẫu thuật mắt.
-
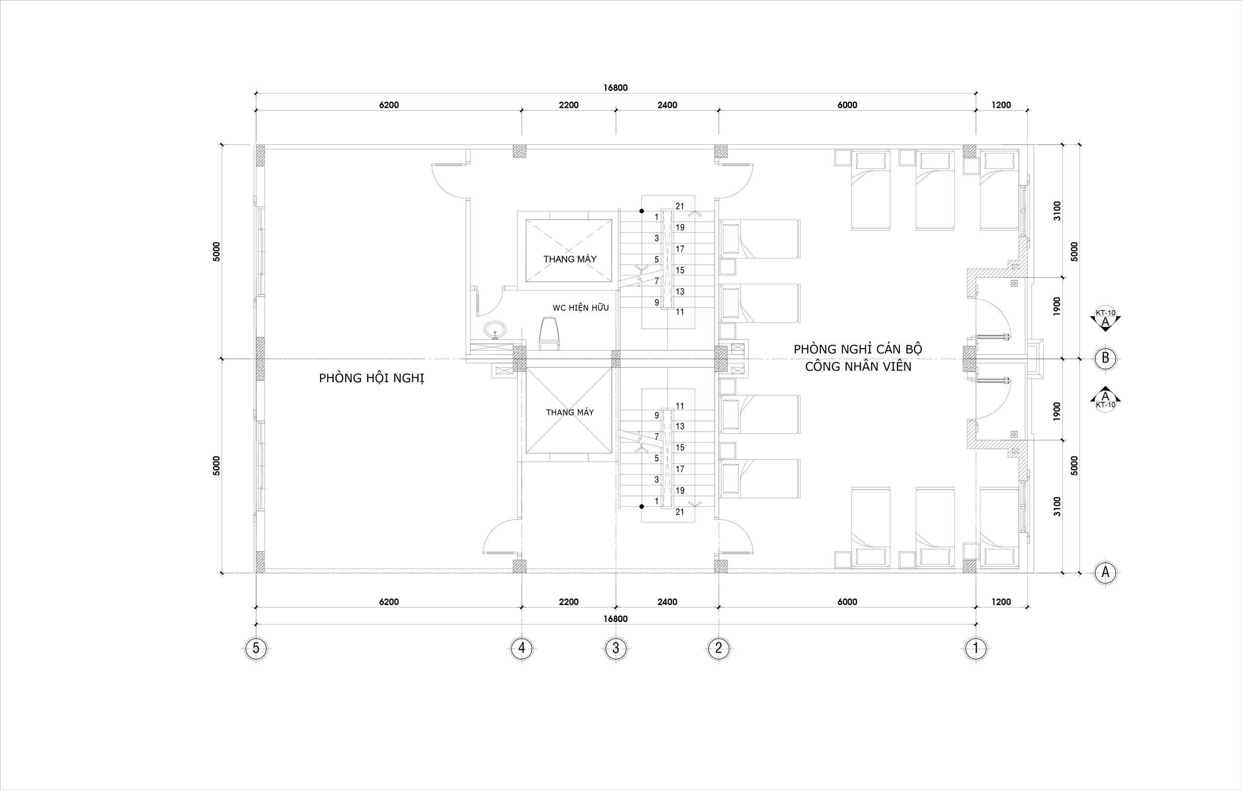
Tầng 4 & 5: Phòng họp – khu nghỉ nhân viên – khu sinh hoạt chung.
Mang đến không gian thư giãn, tái tạo năng lượng cho đội ngũ y bác sĩ sau giờ làm việc.

Giá trị nổi bật trong thiết kế
Kiến trúc tân cổ điển hiện đại – tinh tế và chuyên nghiệp
Ngôn ngữ thiết kế được tiết giản để giữ lại tinh thần sang trọng, chuẩn mực của phong cách tân cổ điển, nhưng được thể hiện bằng các đường nét hiện đại, nhẹ nhàng. Từ mặt tiền đến không gian nội thất, mọi chi tiết đều hướng đến sự thanh thoát, tinh khiết, đồng điệu với hình ảnh một bệnh viện chuyên khoa mắt – nơi đề cao ánh sáng, độ chính xác và sự an tâm.

Giải pháp thông gió và không khí tươi – đảm bảo chuẩn y tế nghiêm ngặt
Với đặc thù là công trình y tế, đặc biệt ở khu phẫu thuật và hậu phẫu, CJK Concept chú trọng tính toán kỹ lưỡng luồng lưu thông không khí nhằm đảm bảo:
-
Gió tươi được cấp vào liên tục, tạo môi trường dễ chịu, giảm mùi khử trùng và duy trì nồng độ oxy ổn định.
-
Luồng gió đi theo chiều dọc – từ sạch đến bẩn, giúp tránh nhiễm chéo giữa các khu vực.
-
Phòng mổ và khu tiệt trùng được bố trí hệ thống lọc HEPA nhiều tầng kết hợp áp suất dương, đảm bảo môi trường vô khuẩn tuyệt đối trong suốt quá trình phẫu thuật.
Đây là yếu tố kỹ thuật trọng yếu giúp bệnh viện đạt chuẩn vận hành y tế hiện đại và nâng cao chất lượng điều trị.
Thiết kế tối ưu công năng – hướng đến hiệu suất vận hành
Sơ đồ công năng được nghiên cứu dựa trên quy trình khám – chẩn đoán – điều trị – phẫu thuật – phục hồi, tạo nên dòng di chuyển hợp lý cho bác sĩ và bệnh nhân.
Mỗi khu vực đều được bố trí khoa học, tiết kiệm thời gian di chuyển và đảm bảo tuân thủ tiêu chuẩn an toàn.
Ánh sáng tự nhiên và tâm lý thị giác
CJK Concept khai thác hiệu quả ánh sáng tự nhiên và màu sắc trung tính, giúp không gian sáng rõ nhưng không chói, giảm căng thẳng thị giác cho cả bệnh nhân lẫn nhân viên y tế.
Hệ thống chiếu sáng nhân tạo được điều chỉnh theo nhiệt độ màu y khoa (4000–5000K), mang lại cảm giác tin cậy và chuyên nghiệp.
Thẩm mỹ – công năng – kỹ thuật hòa hợp
Dự án 3P Eyecare là sự kết nối tinh tế giữa thẩm mỹ kiến trúc và giải pháp kỹ thuật chuyên sâu, thể hiện triết lý của CJK Concept: “Thiết kế tốt không chỉ đẹp mắt, mà còn vận hành hiệu quả và chăm sóc sức khỏe con người một cách toàn diện.”
Dự án Bệnh viện Mắt Công nghệ cao 3P Sài Gòn là minh chứng cho triết lý thiết kế của CJK Concept – không chỉ chú trọng thẩm mỹ mà còn đảm bảo hiệu quả vận hành và trải nghiệm người dùng.


